世联集深圳 > 世联资讯 > 房产百科 > 4.75万/平?宝安绿城锦和玉鸣将入市!鸿荣源禧园旁

4.75万/平?宝安绿城锦和玉鸣将入市!鸿荣源禧园旁

发布时间:2026-01-07 10:15 来源:搜狐焦点深圳资讯

据了解,位于宝安沙井的绿城锦和玉鸣也即将入市,据消息称,该项目首推1栋与6栋,推出199套精装住宅,主力户型为约89㎡三房及约104-130㎡四房。

项目吹风均价约4.75万/㎡,总价393万起,精装交付。(价格仅供参考,具体以官方信息为准)

约89㎡三房:总价约393-410万,单价约4.4-4.6万/㎡。

约104-107㎡四房:总价约490-530万,单价约4.62-5万/㎡。

约127-130㎡四房:总价约617-645万,单价约4.75-5.1万/㎡。

项目由绿城中国与越秀地产联袂打造,是深圳首个按国家新规建设的楼盘之一。

该项目地块2025年8月由绿城竞得,楼面价约20364元/㎡。

项目共由5栋16-25层高住宅组成,其中1/2/3栋住宅25F,5栋住宅24F,6栋住宅16F,4栋是1所9班制幼儿园;

规划总户数462户,车位比约1:1.15,保障居住纯粹与舒适。

户型亮点:

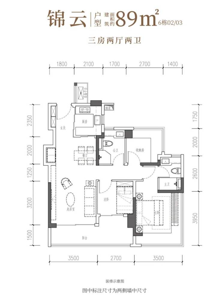
约89㎡三房两卫 | 经典竖厅,三开间朝南

格局:客厅开间约3.5米,LDKB一体化设计,U型厨房,干湿分离卫生间。

亮点:双卧配备270°无柱转角飘窗,客厅连接次卧出约11.46㎡阳台,得房率(含赠送)约97.47%。

朝向:西南/东南。

约104-107㎡四房两卫 | 四开间朝南,功能升级

约104㎡:客厅开间约4.15米,四开间朝南,主卧带设备平台,得房率约100.71%。

约106㎡:客厅开间约3.7米,四开间朝南,主卧带转角飘窗,得房率约101.16%。

约107㎡:创新“双龙抱珠”格局,四开间朝南,三卧配转角飘窗,得房率高达约104.06%。

约127-130㎡四房两卫 | 南北通透,宽厅尺度

共同亮点:独立玄关、客餐厅分离、约5.1米宽厅、主卧带衣帽间及转角飘窗。

差异:约130㎡户型主卧空间更阔绰,得房率约101.95%。

阳台:连接客厅与次卧的阳台面积达约14.09㎡,拓展生活场景。

地理位置及配套方面,项目坐落于宝安沙井新桥街道,正处 “大前海”、“大空港”、“会展新城”、“海洋新城” 四大战略区域的几何中心,承接政策与发展双重红利。

项目距11号线沙井站仅约400米,约10站至前海,15站至南山。

项目配建9班公立幼儿园,并位于 深圳外国语学校宝安学校(集团) 共享学区内(具体以当年教育局公示为准)。该校由深外管理办学,采用特色“书院制”、“小班英语教学”,办学成绩亮眼。

商业:多元消费举步即达

一路之隔:百佳华·佳漾汇(约12万㎡),融入在地蚝乡文化,涵盖零售、餐饮、亲子及休闲体验。

步行范围:天虹商场(沙井店)约10分钟可达。

短驱即至:万丰海岸城(约20万㎡,含已开业山姆会员店)、规划中的高端商业集群,构筑“深圳西部繁华生活圈”。

生态方面,周边坐拥新桥智创城(深圳首个“平方公里级”工改工项目)、西部中心CBD规划,产业动能强劲。区域GDP增速连续位居宝安前列,随着海洋新城等战略落地,区域价值将持续进阶。

项目周边目前在售的新房有万丰海岸城、鸿荣源珈誉府和拾悦城等,价格在4-6万/平之间。

二手房方面,如旁边的鸿荣源禧园,目前75平的5房总价卖365万。

来源:咚咚找房

免责声明:此信息来源于搜狐焦点深圳资讯,版权归原作者。世联集旨在为广大用户提供更多的信息无偿服务,在网页上展示信息并不代表赞同其观点或证实其描述。文章内容仅供参考。如本网站转载的作品涉及版权问题,请与本网站联系进行删除处理。
将本文分享到

还在自己查房产知识?快找世联咨询师一对一沟通吧!

免费咨询

楼市变化多端?找不到心仪的楼盘? 世联集,专业为您服务

  •  获取验证码

深圳买房交流群(

138****8965已经申请

137****8955已经申请

157****4365已经申请

183****8115已经申请

187****5968已经申请

159****8233已经申请

申请入群

  •  获取验证码
    ×
    •  换一张
免责声明:本站楼盘信息旨在为用户提供更多信息的无偿服务,信息以政府部分登记备案为准。

注册 |登录

完善个人信息

登录 |注册 快捷登录 密码登录

  •  获取验证码
    ×
    •  换一张

找回密码 登录 注册

  •  获取验证码
    ×
    •  换一张

如有问题,可联系客服:0755-33526610

如有问题,可联系客服:0755-33526610

一键预约

  •  获取验证码

置业专家将在2小时内与您联系(8点-23点),请保持电话畅通。

验证提交

一键预约

置业专家将在2小时内与您联系(8点-23点),请保持电话畅通。

修改手机号

  •  获取验证码
    ×
    •  换一张

如当前手机号遗失,请联系0755-33526610进行人工修改

  •  获取验证码
    ×
    •  换一张

如当前手机号遗失,请联系0755-33526610进行人工修改